Concept Design by Jeff Daigle, Architect

Concept Design


The most important job any architect has is listening: listening to what the client wants, listening to what the building or site is telling them, and listening to the builder’s recommendations for constructing the design on time and on budget. I start by meeting with you on-site. We discuss what you like, what you’d like to change, and initial ideas of how to make those changes happen. I also measure the existing structure and document it thoroughly with photographs and sketches that I’ll refer to throughout the design process.

After that initial meeting, I prepare the Concept Design—a big-picture first draft of what the changes and additions to the house might look like. At this stage, I also research the Zoning and Building Codes that apply to the site to discover what is allowed to be built on the site and what documentation will be required for the permits. Once we have a Concept Design that you are excited about moving forward with, I recommend getting initial bids from General Contractors so design and budget are aligned. After that, it’s time to move on to the next phase.


We Also Offer

Design Development by Jeff Daigle, Architect
After Concept Design comes Design Development. Now we start to flesh out all the details like the exact layouts of kitchens and bathrooms, sizes an...
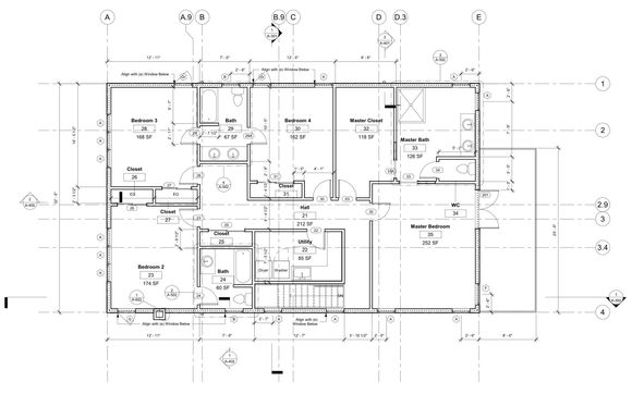
Construction Documents by Jeff Daigle, Architect
After Design Development comes Construction Documents, where I work with the rest of the team to add everyone’s details to the drawings required fo...
1
Local Recommendations
About Us
Designing custom homes, additions, renovations, and ADUs in the Metro Denver area. If you have a house you feel like you’re outgrowing but you don’t want to leave your neighborhood, or a quirky old...(more)